BUY買いたい
中古マンション
プロムナーデ関目
この物件を問い合わせる
価 格 3,380万円
所在地 大阪市城東区古市3-9-22
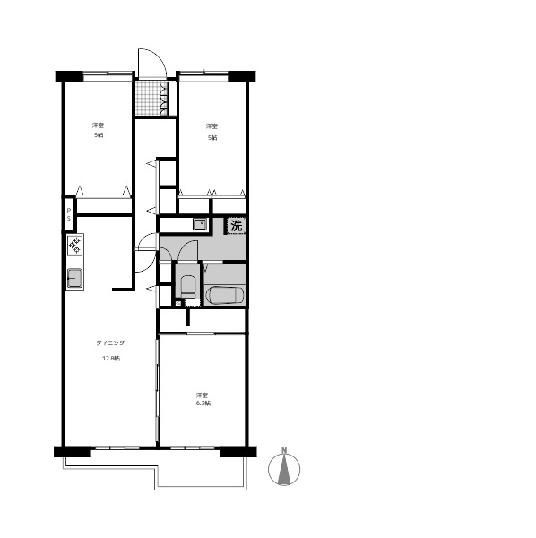
間取り 3LDK
面 積
74.82㎡
POINT
間取り図
- 物件名
- プロムナーデ関目
- 住所
- 大阪市城東区古市3-9-22
- 価格
- 3,380万円
- 交通
- 大阪メトロ今里筋線【新森古市】徒歩4分
- 築年数
- 1992年8月
- 間取り
- 3LDK
- 構造
- SRC造
- 駐車場
- ー
- 面積
- 74.82㎡
- バルコニー面積
- 9.46
- 階建 / 階
- 8階建/3階部分
- 土地権利
- 所有権
- 管理形態
- 管理員:日勤、管理形態:全部委託
- 管理費
- 10,300
- 修繕積立金
- 10,100
- 現況
- 空家
- 引渡
- 相談
- ペット相談
- 小学校区
- すみれ小学校
- 中学校区
- 菫中学校
- 設備
- 備考
MAP
この物件のお問い合わせ







